20
$2,750 Rent
Listed 8 hours ago
111 - 600 ALEX GARDNER CIRCLE
· 2
· 2.5
· 1
· 1200 - 1399
Key Facts
Key facts for 111 - 600 ALEX GARDNER CIRCLE
Property Type
Townhome, Row / Townhouse
Parking
Garage: Yes, 1 parking
MLS #
N12473248
Size
1200 - 1399 sqft
Basement
-
Listed on
-
Lot size
-
Tax
-
Days on Market
-
Year Built
-
Maintenance Fee
-
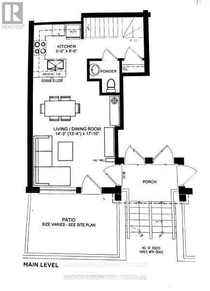
Description
Welcome To Your New Modern Two-Bedroom Townhouse In The Heart Of Aurora. Stunning View, Ss Appliances, White Chef's Kitchen, Quartz Countertops, Tiled Backsplash, Laminate Floors, Large Balcony With Gas Bbq Line And Water Tap, Beautiful Lighting Fixtures, Blinds, Upgraded Faucets, Three Upgraded Was...hrooms With Cabinets, One Underground Parking Plus Outside Visitor Parking, One Large Locker, Steps To Viva And Yrt Bus Stop, Steps To Yonge/Wellington. (id:10452)
Similar Properties (No results)
Listing courtesy of: RE/MAX WEST REALTY INC.
This REALTOR.ca listing content is owned and licensed by REALTOR® members of The Canadian Real Estate Association.